Common area rooms

The common areas of the house include kitchen, living room and dining room, as highlighted on the floorplan on the left.

From the front-door-entry foye you can enter each of those as well as the walkway to the bedrooms.






Kitchen


Living room















Dining room




Advantages of having separate kitchen, living room, and dining room include that you can decorate them in different themes and give yourself a different experience when socializing in them. Designer Varaluz (Flow collection) 5-light pendant included in sale. Hammered ore and silk shade, list price over $1k.


The majority of the items in the house would be offered for sale before closing, and the new perspective owner(s) will be given a chance to negotiate the inclusion of any of the furniture or other items in the sale.

Bedrooms

The current owner considers bedrooms a personal space and since they still have personal belongings, no photos will be provided here. The main layout (in Layout and Construction section) shows their location and dimensions, along with the position of windows, and potential buyers should be able to assess if, based on this information, they are interested enough in buying the house to schedule to view it. It is worth noting that the new, remodelled, primary bedroom has the ceiling that slopes up towards the center of the room and increases the hight at the center (along the full length of the room) probably by about 3ft above the standard (around 8ft) hight. That bedroom is thus large and spacious, giving enough space for a large bed along with the sitting/lounge area.

Closets

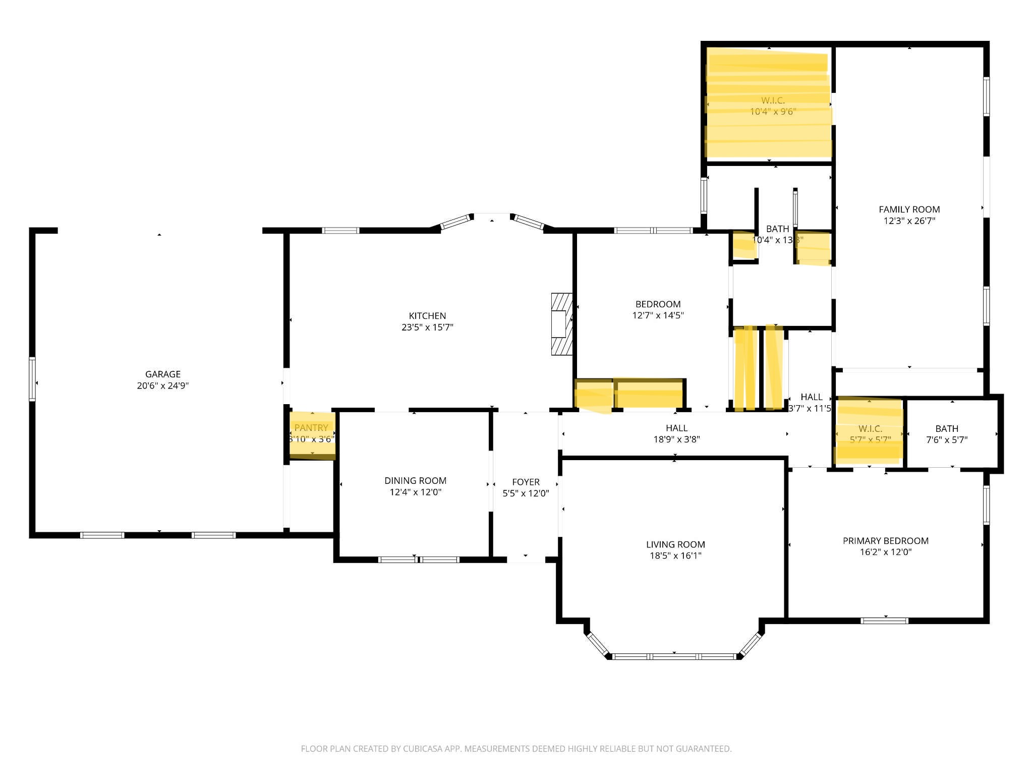
It is worth noting that the house has plenty of closet space. The scheme on the left highlights them, ranging from pantry, to bath and linen closets, to clothing ones. The large walk-in closet off the new primary bedroom has a slylight (tube/tunnel) providing nice natural lighting throught the day for closing selection and dressing or laundry.










Main page


All information on this site represents the opinion of the seller and is to be verified by the buyer.
Copyright 2025-2026 Svetlana A. Pevnitskaya. All rights reserved.