Layout


The layout above is approximate and was done by the seller using Cubicasa App via just one scan. A small mistake was corrected on the scheme above, and it is at the corner connecting the old laundry room, garage and dining room (old laundry room was not entered during scan).
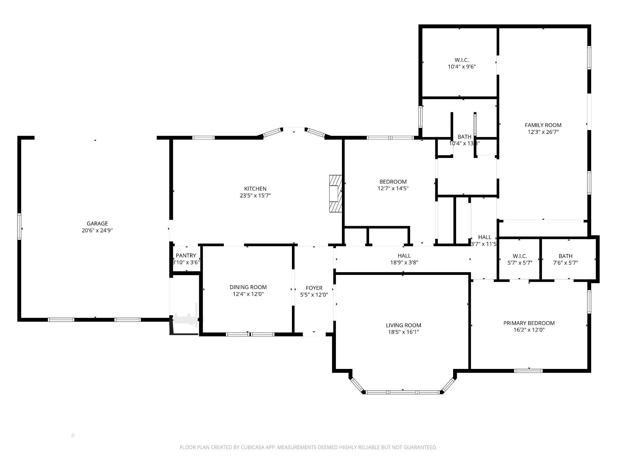
This is a 3 bedroom, 2 bathroom, house. What Cubicasa labeled as "family room" (based on current usage) is a primary bedroom with a large walk-in closet and laundry. That section of the house has been remodeled. The remodeled jack-and-jill (J&J) bath is shared with another bedroom. This feature allows, for example, to use the other bedroom as an office while remaining in the privacy of this kind of suite, or be used as a room for a small child that is connected via this bath to the parents' bedroom. What is labelled as "primary bedroom" was the original primary bedroom with a private bath. J&J updated bath has a walk-in shower, while the orignal "primary bedroom" bath has the original cast iron tub that is great for either taking a shower or a nice relaxing soak.

The house has a spacious garage, unusual for this historic neighborhood and very useful. The driveway is off Maple Dr., and the garage door is not facing the street, giving you privacy when keeping it open. See photo of the end of the driveway (on the left). At the end of the driveway there is a gate to the back wooden patio and pergola. The wood there is damaged but the seller decided to leave them for now to let the new owner(s) decide whether they want to repair or remove them. There is mature jasmine at the back of the pergola that has currently been trimmed away from the front (as seen on the photo on the left), the picture on the right (view from kitchen's patio entry) shows how pergola looks with jasmine over it.

One of the convenient features is that the (updated) electric circut board is right in the garage, providing easy access without having to enter the house. The board is equipped for generator connection. You can see the edge of the circuit board on the photo on the left of the garage entrance, right under the wires entering the house. You can set the generator outside of the garage, while it being connected to the board, to avoid the fumes entering the house.

Current owner particularly appreciates the kitchen, living room and dining room layout. The updated kitchen is large and gives the spacious feel of modern designs that combine it with living room, yet you have the advantage of having a formal dining room, and also a separate living room.

The house gets some sunlight during the whole day, starting from the morning sun in the kitchen and smaller bedroom that are facing east, to the new and original/old primary bedrooms during the day (facing south) and the old primary bedroom, living room and dining room in late afternoon and early evening. At the same time, due to the presence of trees and shade, the bedrooms remain fairly cool.

Construction

The house was built in 1966 on a conrete slab, with wooden frame and brick veneer. The picture below is from leonpa.org website and it includes the addition to the house (A3) that expanded one of the bedrooms into a new "primary", expanded J&J bathroom, and added a walk-in closet. The scheme also shows the front porch (A2) and the screened porch off the new "primary bedroom." That screened porch (A4) should be a little lower on the scheme.


The house is very well and durably built. During the ownership years the current owner did not see any changes or settlement in the house's structure. Apparently some of the original trim was made of redwood, the material not really available for construction these days, and it illustrates the approach to building this house. Original drawings are available. As probably in any period house (before 1978), the paint used at the time contained lead. The additon and remodelled parts would not have it, and the house has been repainted multiple times so it is unclear how much of it is left underneath.

Main page


All information on this site represents the opinion of the seller and is to be verified by the buyer.
Copyright 2025 Svetlana A. Pevnitskaya. All rights reserved.